4 Bedroom
3 Bathroom
1500 - 2000 sqft
Raised Bungalow
Fireplace
Central Air Conditioning
Forced Air
$1,399,900
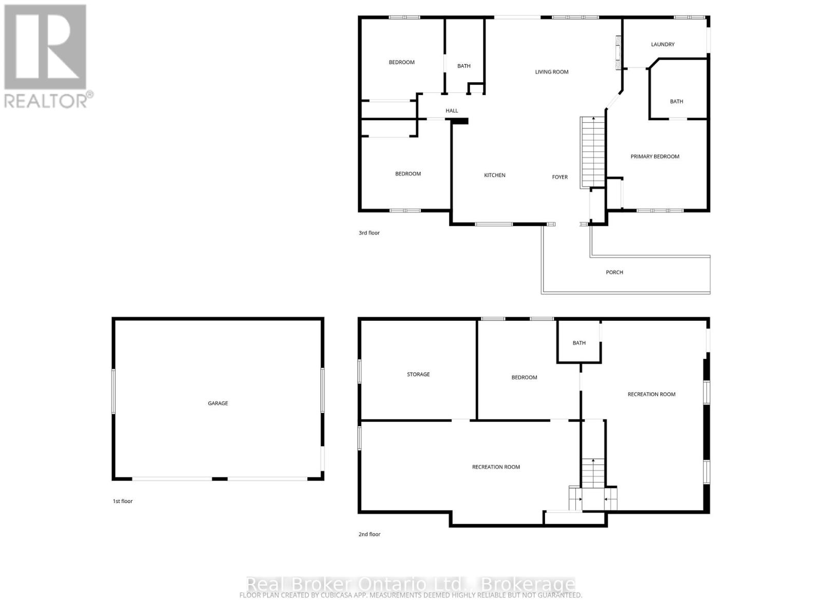
Rare Multi-Generational Home with Full Wheelchair Accessibility - Completed in December of 2025. A truly unique property designed for families who want to live close while maintaining independence. This stunning custom home offers full wheelchair accessibility, including an elevator/lift, wide open spaces, and a private accessible suite, making it ideal for keeping loved ones comfortably at home. The bright, open-concept living area features an expanse of windows & garden doors offering an abundance of natural light with westerly views of the property and a walkout to the back deck. Open to the breathtaking kitchen with a large center island; beautiful finishes and top of the line appliances, you have a wonderful gathering space for everyday living. The main level features two bedrooms and a bathroom in one wing, while the accessible suite and main floor laundry provide convenience and privacy located on the opposite side of the living area. The fully finished basement offers additional living space for extended family, featuring 9' ceilings and Egress-sized windows. Adding exceptional value to the property, you will find a separate self-contained 2 storey home with 3-bedrooms & 2-baths - perfect for rental income, caregivers, or family members who want their own space. Many improvements over the years include kitchen and bathroom renos; new furnace in Dec 2021, and new siding, soffit, and fascia, to name a few. Complete with an oversized detached garage (10 years old)with an unfinished loft above and located just minutes from the beach, this is a one-of-a-kind property. Truly a remarkable offering that must be seen to fully appreciate all that this property has to offer. (id:61445)
Property Details
|
MLS® Number
|
S12851078 |
|
Property Type
|
Single Family |
|
Community Name
|
Rural Tiny |
|
AmenitiesNearBy
|
Beach, Park, Golf Nearby |
|
CommunityFeatures
|
School Bus |
|
Easement
|
Easement, Right Of Way |
|
EquipmentType
|
Propane Tank |
|
Features
|
Wooded Area, Irregular Lot Size, Rolling, Flat Site, Conservation/green Belt, Wheelchair Access, Carpet Free, Sump Pump |
|
ParkingSpaceTotal
|
8 |
|
RentalEquipmentType
|
Propane Tank |
|
Structure
|
Deck, Porch, Shed |
Building
|
BathroomTotal
|
3 |
|
BedroomsAboveGround
|
3 |
|
BedroomsBelowGround
|
1 |
|
BedroomsTotal
|
4 |
|
Age
|
New Building |
|
Amenities
|
Fireplace(s) |
|
Appliances
|
Water Softener, Water Heater, Water Purifier, Dishwasher, Dryer, Microwave, Stove, Washer, Refrigerator |
|
ArchitecturalStyle
|
Raised Bungalow |
|
BasementDevelopment
|
Finished,other, See Remarks |
|
BasementType
|
N/a (finished), Full, N/a (other, See Remarks) |
|
ConstructionStyleAttachment
|
Detached |
|
CoolingType
|
Central Air Conditioning |
|
ExteriorFinish
|
Vinyl Siding |
|
FireProtection
|
Smoke Detectors |
|
FireplacePresent
|
Yes |
|
FireplaceTotal
|
1 |
|
FoundationType
|
Poured Concrete |
|
HalfBathTotal
|
1 |
|
HeatingFuel
|
Propane |
|
HeatingType
|
Forced Air |
|
StoriesTotal
|
1 |
|
SizeInterior
|
1500 - 2000 Sqft |
|
Type
|
House |
|
UtilityWater
|
Drilled Well |
Parking
Land
|
Acreage
|
No |
|
LandAmenities
|
Beach, Park, Golf Nearby |
|
Sewer
|
Septic System |
|
SizeDepth
|
207 Ft ,6 In |
|
SizeFrontage
|
448 Ft ,10 In |
|
SizeIrregular
|
448.9 X 207.5 Ft ; 88.26 X 416.53 X 207.51 X 98.01 X 336.59 |
|
SizeTotalText
|
448.9 X 207.5 Ft ; 88.26 X 416.53 X 207.51 X 98.01 X 336.59|1/2 - 1.99 Acres |
|
SurfaceWater
|
Lake/pond |
|
ZoningDescription
|
Rr-141 |
Rooms
| Level |
Type |
Length |
Width |
Dimensions |
|
Lower Level |
Utility Room |
4.43 m |
5.13 m |
4.43 m x 5.13 m |
|
Lower Level |
Family Room |
4.59 m |
9.79 m |
4.59 m x 9.79 m |
|
Lower Level |
Recreational, Games Room |
27.11 m |
5.42 m |
27.11 m x 5.42 m |
|
Lower Level |
Bedroom 4 |
4.43 m |
4.55 m |
4.43 m x 4.55 m |
|
Main Level |
Foyer |
4.69 m |
2.4 m |
4.69 m x 2.4 m |
|
Main Level |
Kitchen |
4.69 m |
3.74 m |
4.69 m x 3.74 m |
|
Main Level |
Living Room |
4.43 m |
6.08 m |
4.43 m x 6.08 m |
|
Main Level |
Primary Bedroom |
6.23 m |
4.47 m |
6.23 m x 4.47 m |
|
Main Level |
Bedroom 2 |
3.98 m |
3.98 m |
3.98 m x 3.98 m |
|
Main Level |
Bedroom 3 |
3.61 m |
3.68 m |
3.61 m x 3.68 m |
|
Main Level |
Laundry Room |
2.18 m |
3.73 m |
2.18 m x 3.73 m |
Utilities
|
Electricity
|
Installed |
|
Wireless
|
Available |
https://www.realtor.ca/real-estate/29434351/597-lafontaine-road-w-tiny-rural-tiny